聯系我們

河北逍迪絲網制品有限公司
電話:0318-8881333
傳真:0318-3537271
手機:18203332444 (微信同步)
地址:河北省衡水市安平縣西兩洼鄉后鋪村西120米處
鋼斜梯
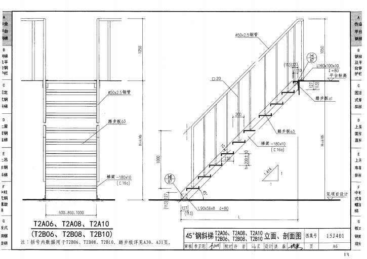
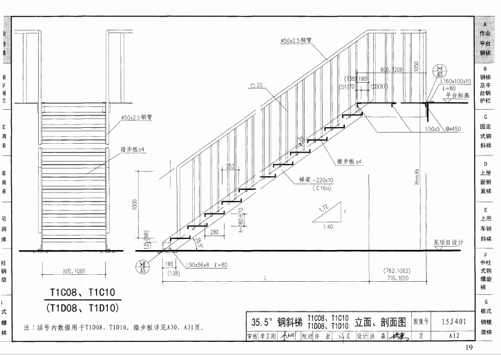
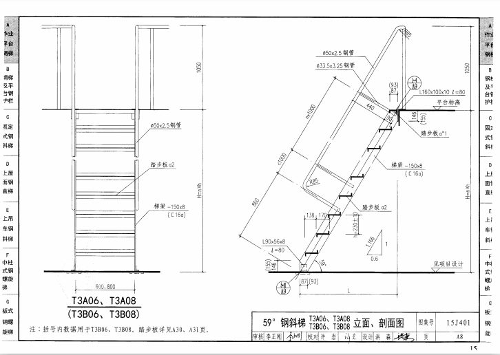
河北逍迪絲網制品有限公司生產的鋼斜梯是按照圖集是根據住房和城鄉建設部建質函口 (014) 119 號文“住房城鄉建設部關于印發《2014 年國家建筑標準設計編制工作計劃》的通知”編制的。本圖集依據的主要標準規范:GB 4053.1-2009《固定式鋼梯及平臺安全要求第2部分:鋼斜梯》GB 4053.2-2009《固定式鋼梯及平臺安全要求第 部分:工業防護欄桿及鋼平臺》 GB 4053. 3-2009《鋼結構設計規范》 GB 50017-2003《建筑結構荷載規范》 GB 50009-2012《建筑設計防火規范》 GB 50016-2014作業平臺鋼梯代號T1-T4傾角有 35.° 45 ° 59°73°四種;梯寬有600mm,800mm,l000mm三種;梯梁材料有鋼板的和槽鋼的兩種;梯梁有不帶平臺的,上端帶平臺的和下端帶平臺的三種
固定式鋼斜梯
固定式鋼斜梯XT1代表鋼板梯梁鋼斜梯,XT2代表槽鋼梯梁鋼斜梯,梯高有1500mm,1650mm,1800mm,1950mm,2100mm,2250mm六種;梯寬有1000mm,1200mm,1500mm,1800mm,四種;踏步寬有300mm和280mm兩種
鋼斜梯應用
適用于各種新建和改擴建的工業與民用建筑工程,本圖集可供建筑設計和工程施工、監理等相關人員使用。河北逍迪
河北逍迪絲網制品有限公司是一家專業生產鋼斜梯,鋼梯,護籠爬梯,鋼直梯,是完全按圖集圖紙生產制造有需要的朋友請聯系賈經理18203332444微信同步相關資訊
- 2021-06-15
WA203/1 WB203/2 在鋼格板中是什么意思?..
- 2020-06-22
鋼梯圖片15J401圖集02J401圖集中柱式鋼..
- 2020-06-15
斜體間平臺@屋面檢修鋼梯@上段中段下..
- 2020-06-15
15J401圖集02J401圖集@上吊車平臺@中柱式..
- 2020-06-15
河北逍迪鋼梯護籠@直爬梯@材質Q235-..
- 2020-06-15
河北生產護籠鋼爬梯廠家..
- 2020-03-09
北京通州區鋁合金鋼格柵板@踏步板溝..
- 2019-12-10
冷熱鍍鋅處理鋼格柵板 材質Q235B 不銹..
- 2019-08-21
河北逍迪絲網制品有限公司,新增產..
- 2019-05-22
格柵板廠家擁有專業CAD制圖人員,可..
- 2019-05-22
扁鋼對鋼格板質量的好壞的影響..
- 2019-05-21
安平鋼格板廠之間的低價競爭行為..
- 2019-05-21
復合型鋼格板的優勢__逍迪絲網..
- 2019-05-21
熱鍍鋅鋼格板的幾個優點..
- 2019-05-21
鋁格柵/鋁格板/鋁合金格柵板/鋁合金..
- 2019-05-21
玻璃鋼樹耙子/合金格柵/河北逍迪絲網..
- 2019-05-21
鋼格板護欄是指用鋼格板做成的護欄..
- 2019-05-21
針對不銹鋼冶煉特性..
- 2019-05-21
格柵板/鍍鋅格柵板/平臺格柵板..
- 2019-05-21
鋼格板的區別分類是什么..
- 2019-05-21
鋼格板廠/河北逍迪絲網制品有限公司..
- 2019-05-20
購買鋼格板時要注意的問題..
- 2019-05-20
熱鋼格板怎么辨別好壞..
- 2019-05-20
鋼格板原材料選材的注意事項..
- 2019-05-09
鋼格板規格WA255/1-G(WT1)、WB203/1是什么..
- 2018-12-31
熱鋼鋼格板的運輸環節很重要..
- 2018-12-30
熱鋼格板是由Q235材質的扁鐵焊接而成..
- 2018-12-29
鋼格板產品的特性決定了必須要收取..
- 2018-12-28
如何確認鋼格板承載扁鋼方向..
- 2018-12-27
鋼梁與鋼格板如何連接..
- 2018-12-26
關于鋼格板還有哪些疑問急需探討?..
- 2018-12-25
如何從外觀上看出鍍鋅鋼格板的好壞..
- 2018-12-24
鋼鐵廠專用鋼格板的裝卸運輸的注意..
- 2018-12-23
如何降低鋼格板采購成本..
- 2018-12-22
平臺鋼格板簡介...
- 2018-12-21
鋼溝蓋鋼格板在安裝時需要注意什么..
- 2018-12-20
哪些因素會導致平臺鋼格板的使用壽..
- 2018-12-19
熱鋼鋼格板廠家的交貨期限是多久?..
- 2018-12-18
平臺鋼格板的規格以及材料要求..
- 2018-12-17
熱浸鋅如何有效的對鋼格板進行防腐..
- 2018-12-16
齒形鋼格板生產和安裝有什么要求..
- 2018-12-15
不銹鋼格是一種永久性的鋼格板..
- 2018-12-14
鋼格板的引入,生產和發展前景..
- 2018-12-13
格板之玻璃鋼格板的市場前景..
- 2018-12-12
如何從各種各樣的鋼格板中選出合格..
- 2018-12-11
原來鋼格板還有這么多的優點..
- 2018-12-10
怎么才能讓異型鋼格板發揮更大的使..
- 2018-12-09
環保鋼格板的發展應用的優勢..
- 2018-12-08
不符合質量標準的鋼格板一律不允許..
- 2018-12-07
不同類型的熱鋼鋼格板有什么不同..
- 2018-12-06
應及時蓋嚴,應符合以下規則鋼格板..
- 2018-12-05
鋼格板在噴漆之前應該做什么準備..
- 2018-12-04
熱鋼熱鋼鋼格板安裝夾注意事項..
- 2018-12-03
運輸熱鋼鋼格板的過程中應該重視甚..
- 2018-12-02
鋼格板的未來發展走向..
- 2018-12-01
那些因素導致鋼格板鋼材產品價格上..
- 2018-11-29
怎么判斷鋼格板的扁鋼方向..
- 2018-11-28
造成鋼格板變形的因素有那些..
- 2018-11-27
無論是熱電廠或水電廠還是用鋼格板..
- 2018-11-26
鋼格板怎么安裝,安裝中應該注意哪..
- 2018-11-25
插接鋼格板的四種常見類型..
- 2018-11-24
鋼格板平臺選擇什么樣的可以防止行..
- 2018-11-23
跟著鋼格板產物的運用越來越普遍..
- 2018-11-22
購買鋼格板這些誤區一定不能犯..
- 2018-11-20
酸霧測試可以檢測出鋼格板的耐腐蝕..
- 2018-11-19
熱鋼鋼格板和電鋼鋼格板的區別..
- 2018-11-18
鋼格板在進行包裝和焊接的時候要注..
- 2018-11-17
怎樣選擇合適的安裝鋼格板的方法..
- 2018-11-16
熱鋼鋼格板都用在了什么地方呢?..
- 2018-11-15
別具一格的鋼格板,在城市規劃中起..
- 2018-11-14
怎么才能選擇到合適的鋼格板..
- 2018-11-12
玻璃鋼格板和鋼鋼格板之間的差別有..
- 2018-11-11
為什么石油化工廠用熱鋼鋼格板?..
- 2018-11-10
壓鎖鋼格板的特點和種類..
- 2018-11-09
采購鋼格板的時候需要注意的事項..
- 2018-11-08
鋼格板特點鮮明 用途極其廣泛..
- 2018-10-31
穿孔鋼格板平臺板介紹..
- 2018-10-29
不銹鋼鋼格板鋼格板具有較強的耐腐..
- 2018-10-28
原來鋼格板焊接有這么多講究..
- 2018-10-27
而對曳引繩磨損并卡繩鋼格板..
- 2018-10-26
鋼格告訴你怎樣避免鋼格板在裝卸時..
- 2018-10-25
密性鋼格板介紹和用途..
- 2018-10-24
不同規格系列的鋼格板的不同用途..
- 2018-10-23
各種重承載大跨度平臺用鋼格板來代..
- 2018-10-22
熱鋼鋼格板種類、應用...
- 2018-10-21
玻璃鋼格和鋼格板的缺點與不足..
- 2018-10-20
鋼格板作用以及在生活中的運用有哪..
- 2018-10-19
中國鋼格板的發展歷史..
- 2018-10-18
插接鋼格板在格板行業異軍突起..
- 2018-10-17
如何避免鋼格板脫鋅..
- 2018-10-16
熱鋼鋼格板廣泛用于新舊路基的鋪蓋..
- 2018-10-15
怎么解決熱鋼鋼格板表面粗糙問題..
- 2018-10-14
防滑鋼格板的原料組成及其優勢..
- 2018-10-13
鋼格板的主要分類有哪些..
- 2018-10-12
熱鋼鋼格板和不銹鋼格板的防銹、抗..
- 2018-10-11
揭秘洗車房大量使用鋼格板的原因..
- 2018-10-10
網格板采油平臺也是這鋼格板個事理..
- 2018-10-09
隨著社會的發展和人們生活水平的提..
- 2018-10-08
踏鋼格板步板需要制造成各種尺寸..
- 2018-10-07
挑選材料適合用途的鋼格板有妙招..
- 2018-10-06
防止電廠鋼格板安全事故發生的措施..
- 2018-10-05
熱鋼鋼格板操縱手工與機器壓焊的差..
- 2018-10-04
成品鋼格板是你安裝鋼梯的首選..
- 2018-10-03
關于鋼格板采購成本預算的選擇..
- 2018-10-02
鋼格板市場前景廣闊 特點與構造要知..
- 2018-10-01
船用鋼格板所采用的鋼材首先優良的..
- 2018-09-30
鋼格板都是具有哪些種類..
- 2018-09-29
熱鋼格板與電鋼格板有哪些不一樣..
- 2018-09-28
影響鋼格板性能的因素有哪些..
- 2018-09-27
室內鋼格板怎樣維護和保養才更好..
- 2018-09-26
鋼格板采購一些常見問題解答..
- 2018-09-25
如何選擇有保障的鋼格板廠家..
- 2018-09-24
影響鋼格板價格的因素大概有三種..
- 2018-09-23
支承網格板環應鋼格板改用鋼格板抱..
- 2018-09-22
熱鋼鋼格板是怎么分類 有什么標識方..
- 2018-09-21
扁鐵影響鋼格板的價格因素..
- 2018-09-20
鋼格板運到客戶手中變形了怎么辦..
- 2018-09-19
鋼格板的優越性有哪些..
- 2018-09-18
中國鋼格板行業的發展趨勢怎么樣..
- 2018-09-17
插接壓焊鋼格板種類和介紹..
- 2018-09-16
怎樣在施工時減小鋼鋼格板的變形程..
- 2018-09-15
市場錯鋼格板行業構造調劑的倒逼”..
- 2018-08-09
2018年8月7日扁鋼價格和304扁鋼價格..
- 2018-08-07
2018年8月7日扁鋼價格..
- 2018-07-15
標準壓焊鋼格板的生產工藝..
- 2018-07-14
鍍鋅鋼格板報價為何暴升?..
- 2018-07-14
不銹鋼鋼格板的優點及用處..
- 2018-07-14
鍍鋅鋼格板受歡迎的原因..
- 2018-07-13
不銹鋼鋼格板的表面處理..
- 2018-07-12
玻璃鋼用于什么行業..
- 2018-07-12
鍍鋅鋼價格影響因素..
- 2018-07-12
鍍鋅鋼的優點及用處..
- 2018-07-12
電力廠鍍鋅材質平臺報價..
- 2018-07-12
不銹鋼鋼材質產品價格是多少?..
- 2018-07-11
不銹鋼鋼格板酸洗與拋光的區別?..
- 2018-07-06
不銹鋼鋼格板與鍍鋅鋼格板的區別..
- 2018-07-05
不同鋼格柵板用途分類..
- 2018-07-04
不銹鋼鋼格板價格是多少?..
- 2018-07-03
車間用平臺鋼格柵板..
- 2018-07-02
鍍鋅鋼格柵板的采購誤區是什么?..
- 2018-07-01
玻璃鋼格柵板和平臺鋼格柵板的區別..
- 2018-06-30
玻璃鋼格柵板用途廣泛、價格便宜..
- 2018-06-29
插接鋼格板和焊接鋼格板之間的差異..
- 2018-06-28
吊頂鋼格板特色介紹..
- 2018-06-27
齒形鋼格板規格以及分類..
- 2018-06-26
插接鋼格柵板叫法與特點分類..
- 2018-06-25
玻璃鋼格柵板與熱鍍鋅鋼格柵板的優..
- 2018-06-24
插接鋼格柵板的產品特點..
- 2018-06-23
玻璃鋼格柵板廠家哪家好?..
- 2018-06-22
插接鋼格柵板類型介紹..
- 2018-06-21
電廠鋼格柵板廠家..
- 2018-06-20
電廠平臺鋼格柵板焊接注意..
- 2018-06-19
船用鋼格柵板表面處理方式及生產標..
- 2018-06-18
不銹鋼鋼格柵板在國內外的廣泛應用..
- 2018-06-17
齒形鋼格柵板應用于哪些場所?..
- 2018-06-16
玻璃鋼格柵板的十大性能..
- 2018-06-15
玻璃鋼格柵板性能特點..
- 2018-06-14
不銹鋼鋼格板制作方式有哪些..
- 2018-06-13
不銹鋼鋼格板材質及優勢..
- 2018-06-12
玻璃鋼格柵蓋板介紹..
- 2018-06-10
鍍鋅鋼格柵板安裝分析研究..
- 2018-06-09
玻璃鋼格柵板顏色暗淡是什么原因?..
- 2018-06-08
插接鋼格柵板是什么樣的?哪里有賣..
- 2018-06-07
電廠平臺鋼格柵原材料-國內現貨鋼價..
- 2018-06-06
插接鋼格板有幾種類型?..
- 2018-06-05
鍍鋅鋼格柵板的優越性..
- 2018-06-04
齒形鋼格柵板產品介紹..
- 2018-06-03
不銹鋼鋼格板的分類及使用情況..
- 2018-06-02
電廠平臺鋼格柵規格都有哪些..
- 2018-06-01
不銹鋼鋼格柵板的物理性能..
- 2018-05-31
插接鋼格柵板制作與應用..
- 2018-05-30
電廠用熱鍍鋅鋼格柵板..
- 2018-05-29
不銹鋼鋼格柵板也會生銹嗎?..
- 2018-05-29
齒形鋼格柵特點..
- 2018-05-28
不銹鋼鋼格柵板生銹了怎么辦?..
- 2018-05-28
不銹鋼鋼格板按品種區別..
- 2018-05-27
不銹鋼鋼格柵板..
- 2018-05-27
齒形鋼格柵規格型號..
- 2018-05-26
插接鋼格柵板規格介紹..
- 2018-05-26
插接鋼格板與普通平臺鋼格板有哪些..
- 2018-05-25
鍍鋅鋼格板在鍍鋅時應考慮的幾大因..
- 2018-05-25
從鋼格柵板外觀分辨鋼格柵板質量..
- 2018-05-24
齒形鋼格柵板比起普通鋼格柵板的優..
- 2018-05-24
玻璃鋼格柵板性能規格介紹..
- 2018-05-24
鍍鋅鋼格柵板構造特點..
- 2018-05-22
不銹鋼鋼格柵板的廣泛應用..
- 2018-05-22
玻璃鋼格柵板和平臺鋼格柵板的不同..
- 2018-05-21
鍍鋅鋼格柵板和玻璃鋼格柵之間區別..
- 2018-05-21
船用鋼格柵板的要求..
- 2018-05-20
玻璃鋼格柵有哪些特點?..
- 2018-05-20
鍍鋅鋼格柵板廣泛應用..
- 2018-05-19
玻璃鋼格柵蓋板尺寸與應用有哪些..
- 2018-05-19
插接鋼格柵板批發價格..
- 2018-05-18
鍍鋅鋼格柵板的上鋅量..
- 2018-05-18
鍍鋅鋼格柵板的制作方法..
- 2018-05-17
插接鋼格柵板型號規格..
- 2018-05-17
齒形鋼格柵板哪家有現貨?..
- 2018-05-16
玻璃鋼格柵板與熱鍍鋅金屬鋼格柵的..
- 2018-05-16
船用鋼格柵板的選材..
- 2018-05-15
插接鋼格柵板分多少種類型?..








